2500 Baden, Melker Gasse 15 + 18

Familienfreundliche Stadthäuser im Zentrum Baden

„Wir haben vor 3 Jahren ein Reihenhaus bei der Fa. SCHIPPL-HAUS gekauft. Vom ersten Termin bis zur Übergabe haben wir uns sehr gut aufgehoben und informiert gefühlt. Trotz widriger Umstände (Lieferschwierigkeiten in der Pandemie) konnte Hr. Schippl und sein äußerst kompetentes und freundliches Team zeitgerecht und mit bemerkenswertem Einsatz unser Haus gemäß unseren Wünschen fertigstellen. Die Qualität der Ausführung im Gesamten (wir haben uns für eine schlüsselfertige Herstellung entschieden) hat sowohl uns als auch Gutachter und Besucher überzeugt.“

Patrick Jutz

„Wir haben vor 3 Jahren ein Schippl Haus erworben und sind seit der ersten Besichtigung rundum zufrieden mit der Betreuung durch Herrn Schippl. Dass die Qualität des Hauses durch die Bauweise und die Wahl von sehr guten Professionisten 1A ist,wussten wir schon von Anfang an durch eine Begutachtung eines befreundeten Experten. Auch nach unserem Einzug stand Herr Schippl uns mit seinen Mitarbeitern stets sehr rasch, freundlich und kompetent bei der Behebung von kleineren Mängeln oder bei Fragen zur Seite - und das bis heute! Wir können diesen Bauträger wirklich weiterempfehlen.“

Melanie Schiebl

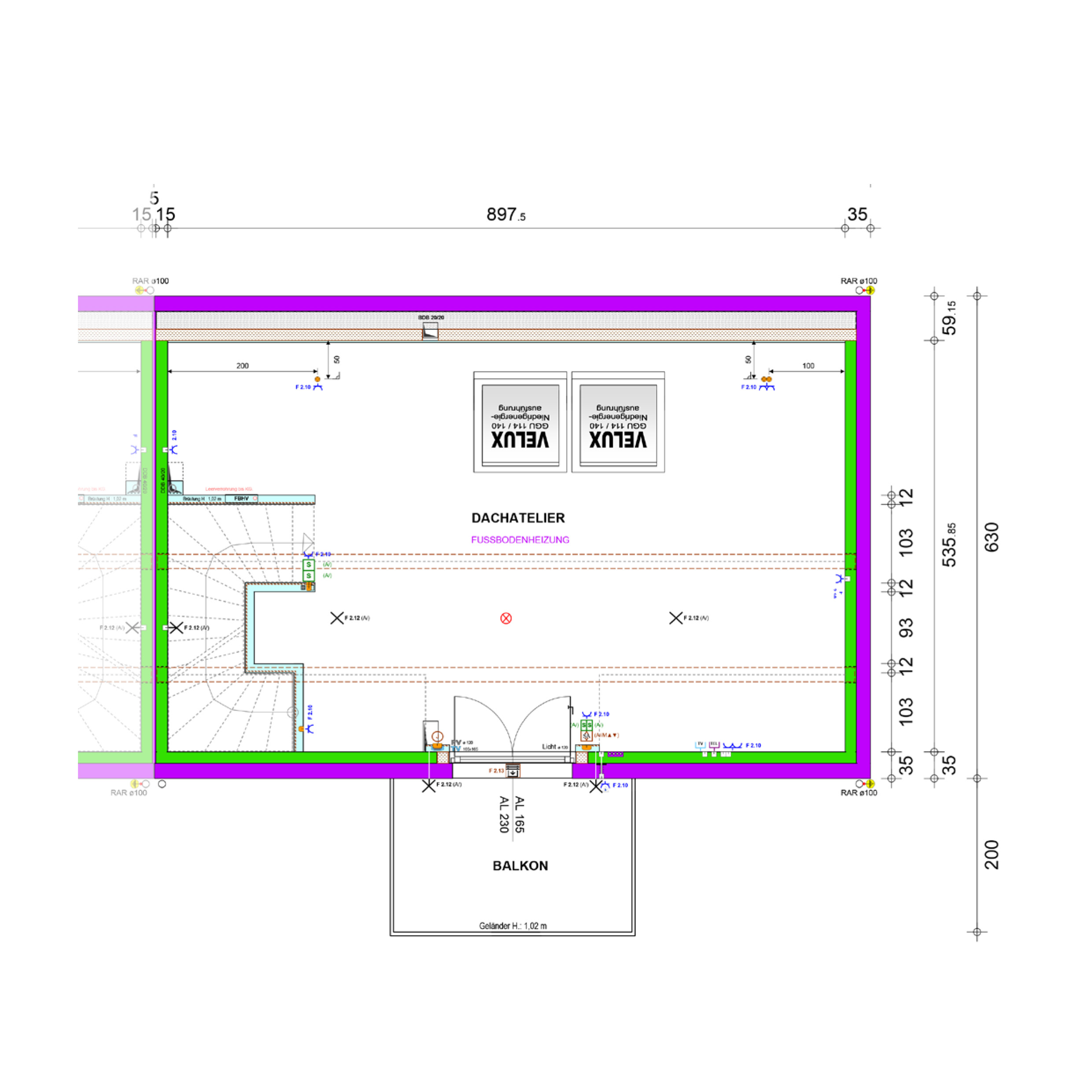
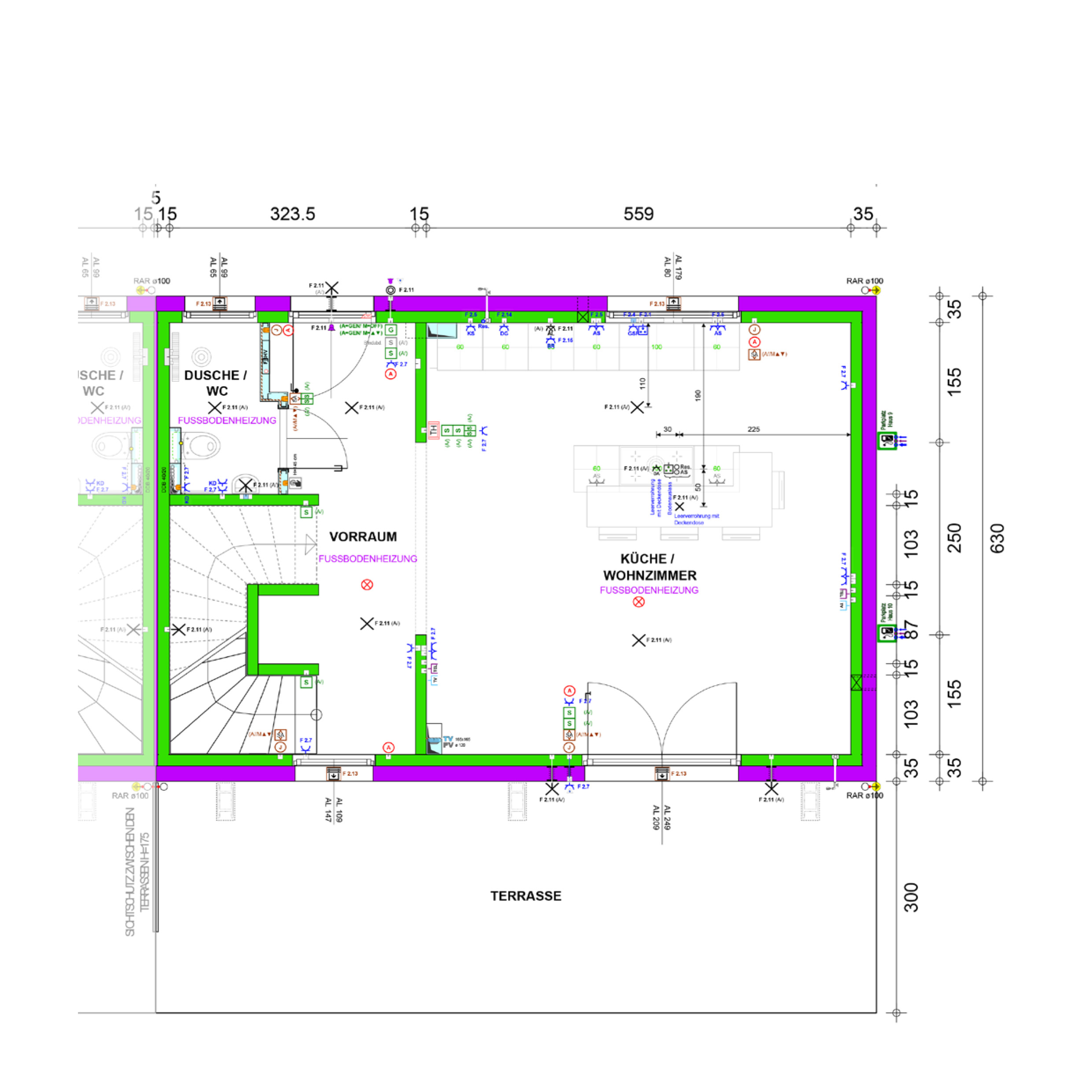
14 familienfreundliche Stadthäuser

mit viel Platz für die ganze Familie und eigenem Home Office im Dachatelier mit Balkon und Fernblick.

Massivbauweise

  • Wandaufbau eines Passivhauses
  • doppeltes Mauerwerk und Schalldämmplatten zwischen den Hauseinheiten
  • druckwasserisolierter Keller mit Fußbodenheizung

Perfekte Haustechnik

  • Intelligentes E-Bus-System (Smartphone steuerbar)
  • elektrisch betriebene Raffstores
  • hauseigener Biomasse-Fernwärmeanschluss
  • Vorbereitung für: Photovoltaik, Alarmanlage, SAT-Anlage, E-Autoladestation, superschnellen Internetanschluss...

Höchste Qualität

Die Konzeption und Gebäudeerrichtung sowie Baukontrolle und Qualitätssicherung befindet sich seit vielen Jahren in erfahrenen Händen renommierter Unternehmen und Experten.

Bestes Preis- / Leistungsverhältnis

Durch extrem günstige Bewirtschaftungskosten, sowie die stete Wertsteigerung, stellt ein Schippl-Haus eine wertvolle Existenzgrundlage, vor allem für Familien mit Kindern, dar.

Wohnen in bester Lage im Zentrum von Baden

  • 60 m zum Kinderspielplatz
  • 250 m zur Volksschule
  • 350 m zum Kindergarten
  • 800 m zum Einkaufszentrum
  • 800 m zur Badner Bahn
  • 1,3 km zum Bahnhof
  • 1,5 km zur Fußgängerzone
  • 1,9 km zum Kurpark und Casino